
医用电梯,不仅用于运送乘客,还因使用的特殊性对电梯的功用性能有着特殊和严洛的要求。公司病床电梯,能控制电梯的运行速度,运行平稳、舒适。病床电梯注重人性化的设计,来充分优化桥厢结构,较大限度地满足客户的使用要求。为乘客营造了—个宁静、淡雅的空间。
医用电梯以其独特的设计理念,创造与医院环境和谐统一,清洁明亮的空间, 为乘窖创造了—个舒适的环境,为病人更增添几分康复的信心。
残疾人专用功能,平等运载,和谐空间
医用电梯努力为所有人创造平等的无障碍空间,将残障人士的需求纳入到电梯的设计理念中,除了在按钮上刻印盲文外,桥厢内的按钮表采取装潢方式,高度离桥底约一米左右,非常方便残障人士的使用,同时也不影响普通乘客使用。
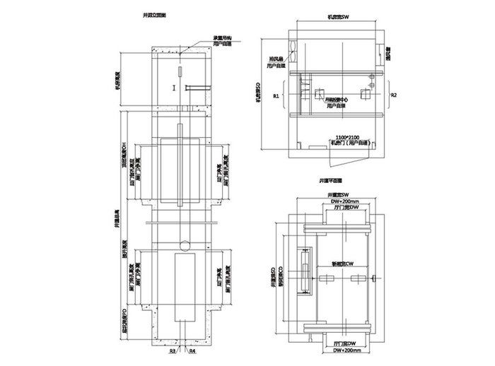
医用电梯土建示意图


医用电梯
医用电梯 2019-4-15 本文被阅读 5286 次
| 上一条:医用电梯 | 下一条:中玮星悦城兰庭 |
















